Localisation
- Chapeiry
Nombre de Pièces
- 5
Surface
- 82,73
Prix
- 399 000 €
quartier
Chapeiry
L’agence sur les toits vous présente en Exclusivité « L’embellie » appartement triplex 5 pièces; avec jardin dans un ancien corps de ferme sur la commune de Chapeiry situé à 8 Km d’Annecy.
Le parfait compromis entre maison et appartement, ce triplex d’une surface au sol de 90m² et 82,73m² loi carrez à fait l’objet d’une réhabilitation complète en 2021. Cette petite copropriété avec faibles charges, située au calme, vous charmera par le cachet de sa façade en pierres apparentes, et en bois…
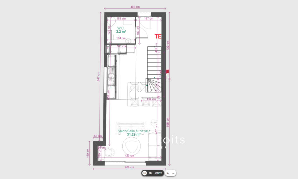
L’entrée s’effectue par le rez-de-chaussée qui propose un dégagement avec rangement et un wc invité. L’espace de vie d’environ 30m²; avec une cuisine ouverte équipée, espace dinatoire, un coin salon donnant directement sur la terrasse et le jardin privatif exposé Sud-Ouest.
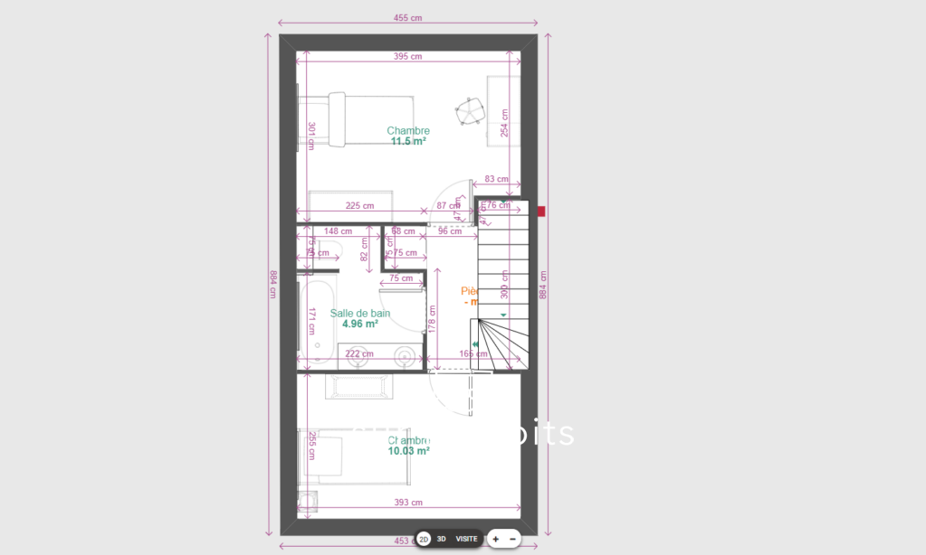
Au premier niveau, deux chambres, dont une suite parents avec une salle d’eau et un balcon bénéficiant d’une belle vue dégagée sans vis à vis sur la campagne environnante. Au dernier niveau deux jolies chambres sous les combles. Une deuxième salle de bains avec baignoire ainsi qu’un wc.
Ce bien est vendu avec une cave et un emplacement de stationnement extérieur inclus dans le prix. Une place de stationnement couverte est également disponible en supplément au prix de 10 000 €.
Idéal pour une famille souhaitant un bien fonctionnel et clé en mains.
Axe autoroutier pour Genève A41 à proximité. (40 minutes de Genève)
Chauffage individuel électrique. Double vitrage. Volets électriques.
Les informations sur les risques auxquels ce bien est exposé sont disponibles sur le site Géorisques : www.georisques.gouv.fr























